Dalempromenade
Heerlijk centraal wonen in het groen? Dat is wonen in Dalempromenade.
Locatie
De appartementen bevinden zich in de Dongevallei: een unieke plek om te wonen. Aan de ene kant kijk je uit op een mooi natuurgebied, waar je regelmatig Hooglanders, watervogels en andere dieren kunt zien. Aan de andere kant ligt winkelcentrum Dalem, een kleinschalig maar compleet winkelgebied. Met onder andere een bakker, apotheek, slijterij, drogist en een supermarkt. Zo geniet je van rust en natuur, maar heb je ook alle voorzieningen dichtbij.
Kenmerken
| Stadsdeel | Reeshof |
| Soort woning | Appartement |
| Aantal verdiepingen | 7 |
| Bouwjaar | 2007 |
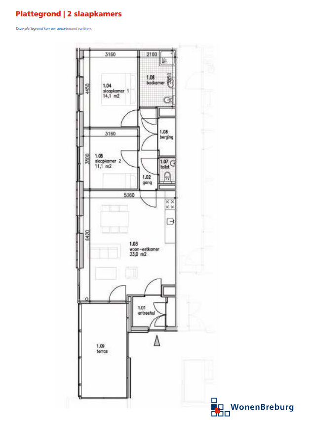
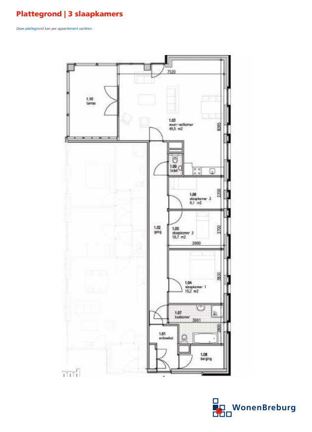
| Woonoppervlakte totaal | Type 2 slaapkamers: 78 m² Type 3 slaapkamers: 115 m² |
| Oppervlakte woonkamer incl. keuken | Type 2 slaapkamers: 33 m² Type 3 slaapkamers: 49 m² |
| Aantal slaapkamers | 2 of 3 |
| Aantal kamers | 3 of 4 |
| Balkon | Ja |
| Berging | Gemeenschappelijke fietsenstalling |
| Parkeren | Eigen parkeerplaats in parkeerkelder |
| Voorzieningen | Lift, intercom, mechanische ventilatie. Keuken met kookplaat, combimagnetron, koelkast en afzuigkap. |
Plattegrond
Huurprijs en inkomen
De huurprijs en inkomenseis kunnen per jaar verschillen. Je ziet altijd de actuele huurprijs en de inkomenseis bij woningadvertenties op Woning in Zicht en Klik voor Wonen. Meer weten? Neem contact op met onze verhuurmakelaars Vrije sector.
Foto’s, impressies en plattegronden op deze pagina geven een indruk en kunnen afwijken qua indeling, afwerking en kleuren. Je kunt geen rechten ontlenen aan deze informatie.