Reyshoeve Gendringenlaan
Zelfstandig wonen met alle voorzieningen binnen handbereik? In dit zorgcentrum kan het.
Locatie
In dit woonzorgcentrum in de Reeshof woon je zelfstandig. Wel kun je zorg, behandeling en diensten inkopen. Daarbij kun je gebruikmaken van de grote ontmoetingsruimte De Viersprong. Hier kun je warm eten en er worden activiteiten georganiseerd. Het complex is heel geschikt voor bewoners boven de 65 jaar. Op loopafstand ligt winkelcentrum Heyhoef.
In de Reyshoeve zijn vrije sector woningen én sociale woningen te huur. (Deze webpagina gaat over vrije sector.)
Kenmerken
| Stadsdeel | Reeshof |
| Soort woning | Appartement |
| Aantal verdiepingen | 3 |
| Bouwjaar | 2000-2007 |
| Woonoppervlakte totaal | Tussen 70 m² en 100 m², afhankelijk van type |
| Aantal slaapkamers | 1 of 2 |
| Aantal kamers | 2 of 3 |
| Balkon | Ja |
| Berging | Gemeenschappelijke fietsenstalling, mogelijk met plek voor scootmobiel |
| Parkeren | Vrij parkeren in de omgeving |
| Voorzieningen | Lift, intercom (afhankelijk van type), toegankelijk en doorgankelijk voor rolstoel/rollator |
Plattegrond
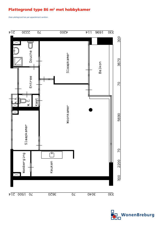
- Plattegrond Reyshoeve type 86 m²
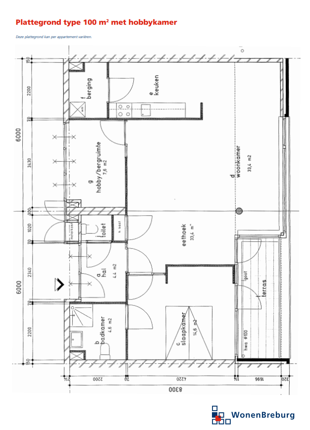
- Plattegrond Reyshoeve type 100 m²
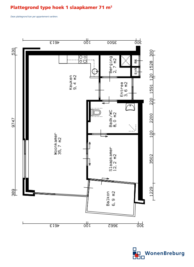
- Plattegrond Reyshoeve type hoek 71 m²
Huurprijs en inkomen
De huurprijs en inkomenseis kunnen per jaar verschillen. Je ziet altijd de actuele huurprijs en de inkomenseis bij woningadvertenties op Woning in Zicht en Klik voor Wonen. Meer weten? Neem contact op met onze verhuurmakelaars Vrije sector.
Foto’s, impressies en plattegronden op deze pagina geven een indruk en kunnen afwijken qua indeling, afwerking en kleuren. Je kunt geen rechten ontlenen aan deze informatie.