Warmondstraat
Hier woon je stijlvol en dichtbij het station en het groen.
Locatie
Dit appartementencomplex is gebouwd onder architectuur en bevindt zich op een toplocatie. Dichtbij winkelcentrum De Heyhoef voor dagelijkse boodschappen en het nabijgelegen Reeshofpark waar je heerlijk kunt wandelen met kinderen en kleinkinderen. Op de fiets ben je in een mum van tijd bij de Oude Warande, het Wandelbos en de Dongevallei; een prachtige, ecologische verbindingszone met Schotse Hooglanders en prachtige natuur. In deze buurt is het stedelijk en centraal wonen, midden in het groen. En de locatie is goed bereikbaar; het ligt direct aan station Tilburg Reeshof. Hier pak je zo de trein en ben je in vijf minuten in hartje Tilburg en in een kwartiertje in de binnenstad van Breda. Ook ben je met auto zo bij de uitvalswegen richting Breda en de rest van Tilburg.
Ruim en licht wonen
De appartementen zijn ruim en licht. Er zijn diverse type appartementen maar ze hebben allemaal een keuken met inbouwapparatuur. De badkamer heeft een wastafel, douche en tweede toilet. Veel appartementen hebben een extra ruime woonkamer omdat de
derde slaapkamer vaak bij de woonkamer getrokken is door de tussenwand te verwijderen.
Kenmerken
| Stadsdeel | Reeshof |
| Soort woning | Appartement |
| Aantal verdiepingen | 3 (3 gebouwen) |
| Bouwjaar | 2009 |
| Woonoppervlakte totaal | Ca. 115 m² |
| Oppervlakte woonkamer | Vanaf ca. 27 m² tot 42 m² |
| Aantal slaapkamers | 2 of 3 (variërend van grootte 10 m², 15 m², 19 m², afhankelijk van type) |
| Aantal kamers | 3 of 4 |
| Balkon | Ja, op het zuiden en over de hele breedte van de woning |
| Berging | Gemeenschappelijke fietsenstalling |
| Parkeren | Vrij in omgeving |
| Voorzieningen | Lift, intercom, kookplaat en afzuigkap, mechanische ventilatie, koelkast (met vriesvak) en combimagnetron |
| Bijzonderheden | Er is een mix van bewoning, sociale huurwoningen en vrije sectorwoningen. Op de begane grond zijn er kantoorruimtes en commerciële ruimtes |
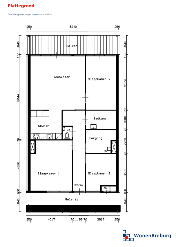
Plattegrond
De plattegrond kan per appartement verschillen.
Huurprijs en inkomen
De huurprijs en inkomenseis kunnen per jaar verschillen. Je ziet altijd de actuele huurprijs en de inkomenseis bij woningadvertenties op Woning in Zicht en Klik voor Wonen. Meer weten? Neem contact op met onze verhuurmakelaars Vrije sector.
Foto’s, impressies en plattegronden op deze pagina geven een indruk en kunnen afwijken qua indeling, afwerking en kleuren. Je kunt geen rechten ontlenen aan deze informatie.